WOHNEN IN LENZFRIED
Haus 11

Neubau von 12 Reihenhäusern mit Keller, Garage und Stellplatz | 87437 Kempten-Lenzfried, Anna-Straubin-Straße

LAGEPLAN Haus 11

Haus 11

Grundstücksfläche ca.:  145,00 m²

Wohnfläche EG/OG/DG: 148,33 m²

Nutzfläche KG ca.: 55,00 m²

ENERGIEAUSWEIS:
GEG: EA-B, XXX kWh (m2•a), EEK A+, Strom (Energieausweis in Arbeit)

PREIS:

Haus 11: 882.000,00 €
Garage: 16.500,00 €
Stellplatz: 7.500,00 €

Kellergeschoss

Waschen / Haustechnik ca.  17,00 m²

Flur ca. 6,00 m²

Keller ca. 32,00 m²

GESAMT ca. 55,00 m²

Erdgeschoss

Essen / Wohnen 34,86 m²

Küche 8,69 m²

Flur 5,45 m²

WC 3,23 m²

Terrasse (50 %) 7,60 m²

GESAMT 59,83 m²

Obergeschoss

Schlafen 16,84 m²

Bad 9,16 m²

Flur 4,66 m²

Zimmer 19,84 m²

GESAMT 50,50 m²

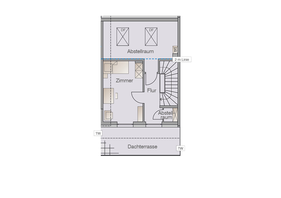
Dachgeschoss

Abstellraum 9,86 m²

Zimmer 14,94 m²

Flur 4,99 m²

Abstellraum 1,17 m²

Dachterrasse (50 %) 7,04 m²

GESAMT 38,00 m²

Kontakt  Impressum   Datenschutz Hinweisgeberschutzportal
© 2025 Hubert Schmid Bauunternehmen GmbH